Te koop DORPSHUIS LE BUGUE
- 140.400€ HAI
- 140.400€ HAI
Description
Stenen dorpshuis Oude binnenstad van Le Bugue
Dit authentieke stenen dorpshuis met een woonoppervlakte van ongeveer 125 m² ligt in het hart van de middeleeuwse wijk van Le Bugue en biedt veel charme en karakter. Het is gebouwd op een perceel van 72 m², heeft drie verdiepingen en is al grotendeels gerenoveerd, zodat u het naar eigen wens kunt afwerken.
Begane grond (47,5 m²): ruime kamer met grote open haard, royale volumes.
Eerste verdieping (47,5 m²): mooie kamer met houtkachel en oud parket, wat het huis karakter en authenticiteit geeft.
Tweede verdieping:
? 30 m² woonoppervlak,
? Terras/balkon van 6,5 m²,
? Open haard, waardoor een lichte en aangename ruimte ontstaat.
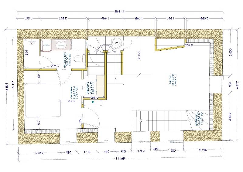
Geplande inrichting (plattegronden beschikbaar):
Begane grond: entree, badkamer, keuken, eetkamer.
Eerste verdieping: slaapkamer met badkamer en toilet en suite, kleedkamer, woonkamer.
Tweede verdieping:
? slaapkamer met kleedkamer en apart toilet,
? tweede slaapkamer met toegang tot het terras.
Werkzaamheden en voorzieningen:
Voorbereidingen getroffen voor:
? elektrische installatie,
? vloerverwarming op de begane grond
? sanitaire installaties.
Aansluiting op de riolering.
Pluspunten ;
Gewilde locatie in een historische wijk,
Charmante stenen woning,
Terras op de bovenste verdieping,
Project aanpasbaar aan uw smaak,
Ideaal als hoofdverblijf, tweede verblijf of vastgoedinvestering.
Een zeldzaam pand dat een mooie kans biedt om een karaktervolle renovatie in een authentieke omgeving te voltooien.
Details
-
Ref. onroerend goed K7262L
-
Prijs 140.400€ HAI
-
Oppervlakte 125 M²
-
Landoppervlakte 72 M²
-
Slaapkamer 0
-
Kamers 3
-
Badkamer 0
-
Garage 0
-
Onroerendgoedbelasting 0 €
Adres
Openen in Google Maps-
Stad: LE BUGUE
-
Postcode: 24260
Energieklasse
-
Energieklasse: F
-
Energieprestatie (in kWh/m²/jaar): 402
-
GHG-emissieklasse: C
-
Broeikasgasemissies (in kg CO₂/m²/jaar): 12
Energieprestatiediagnose (EPD)
Betaalbare woningen
Energie-intensieve woningen
Broeikasgasemissie-index (BKG)
Lage broeikasgasemissies
Hoge broeikasgasemissies
Deze informatie dient uitsluitend ter indicatie en is gebaseerd op het energieprestatiecertificaat (EPC) van de verkoper. Alleen het EPC dat is bijgevoegd bij de documenten (voorlopige koopovereenkomst en definitieve akte) is rechtsgeldig.
GEORISQUES: Informatie over de risico's waaraan dit pand is blootgesteld, is beschikbaar op: www.georisques.gouv.fr .
